Projeto Pronto
R$2,599
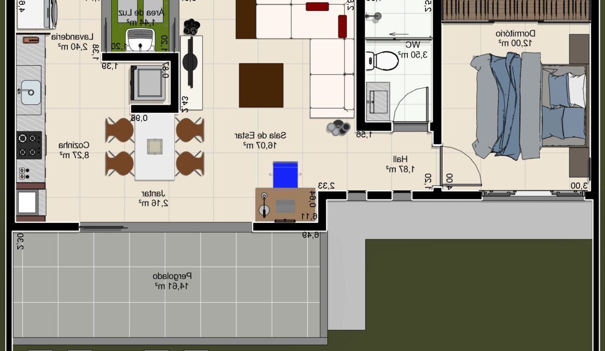
Edícula perfeita para construir e sair do aluguel. Projeto funcional, bonito, completo, e de pouca área construída.
Esse imóvel pode reunir várias utilidades, seja como moradia, área de lazer, espaço para receber visitas/hóspedes, ou mesmo aluguel para terceiros.
Possui ambientes integrados, Sala de Estar/Jantar/Cozinha, além do Dormitório, do Banheiro, da Lavanderia, e da Área de Luz.
Detalhes que trazem charme, bem-estar, utilidade, e que valorizam o imóvel, são: churrasqueira; espaço para mesa de estudo na sala de estar; Claraboia no Banheiro; porta de correr 4 folhas que integra o ambiente interno com a área externa; Área de Luz entre a Sala de Estar e a Lavanderia, que traz ventilação, iluminação e harmonia dos ambientes.
Essa proposta de Projeto vem para atender uma demanda por construção pequena, de baixo investimento, bom gosto, de uso no dia a dia prático e funcional, otimização dos espaços no terreno, e que permita no futuro a construção de Edificação Principal no espaço da frente desocupado no Terreno.
Fique por dentro das nossas novidades, receba dicas e muito mais.






© 2025 Todos Direitos Reservados – Desenvolvido por Agência Colors
© 2025 Todos Direitos Reservados - Desenvolvido por Agência Colors
Owning a home is a keystone of wealth… both financial affluence and emotional security.
Suze OrmanFale com Engenheiro